En la cripta arqueológica de Puerta Obispo, en León, se puede ver una parte de la puerta este del campamento legionario (porta principalis sinistra), pero también esta otra construcción. Son parte de las letrinas de un conjunto termal que se ubicaba junto a la entrada a la ciudad.
Tal fue su entidad que llegaron a la Edad Media y fueron los vestigios sobre los que el rey Ordoño I construyó su palacio hasta que el el siglo X fueron donadas a la Iglesia y sobre ellas se erigió una iglesia a Santa María, origen de la que hoy es la catedral de León.

Por tanto, la propia catedral está construida encima de ellas aunque el perímetro de la infraestructura romana era algo mayor que el que tuvo el templo siglos después y sus restos alcanzan también la plaza de Regla, situada en las inmediaciones de la catedral.
Su documentación es reciente ya que descubrieron en el siglo XIX, pero la parte que se puede visitar hoy en día lo es más aún ya que se descubrieron durante las obras de peatonalización del entorno de la catedral en 1996.

Sobre este lugar se situaba la puerta gótica llamada Puerta Obispo, que da nombre a este entorno y bajo sus restos se encontraron muros de época romana y también del medievo ya que esta parte siempre había funcionado como la entrada este a la ciudad vieja. Los muros eran los de la porta principalis sinistra, pero adyacentes a ellos aparecieron otros cuya obra apuntaba a una obra civil relacionada con un conjunto termal.
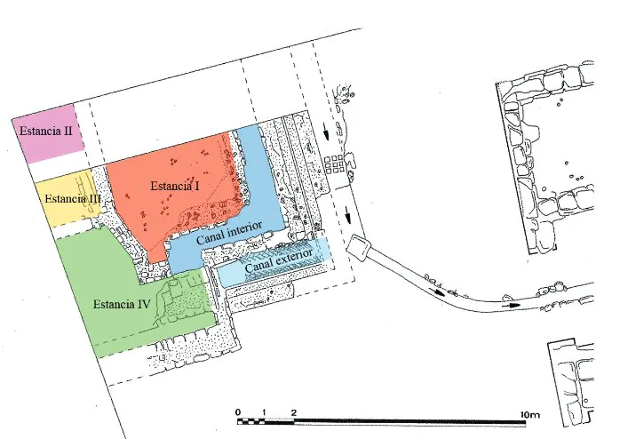
El yacimiento está formado por los cimientos de cuatro estancias y dos sistemas de canalizaciones de agua de los cuales el exterior tiene una obra de opus spicatum. El conjunto debió construirse reaprovechando un antiguo depósito de agua ya que los muros exteriores del conjunto tienen una gruesa capa impermeabilizante. De hecho en esta parte del edificio se perciben al menos tres fases constructivas.

Angel Morillo Cerdán1 dice que probablemente en este punto se encontrara otra puerta anterior de la que no han quedado restos, y que adyacente a ella se encontraría un depósito de agua (frigidarium) que es la parte más antigua del conjunto actual junto con un desagüe visible hoy en la parte inferior (ver planimetría).
Sobre esta fase se edificó la segunda que significó la amortización del depósito y su transformación en diferentes estancias, de las cuales, dos de ellas constituyen la sala de las letrinas y su antesala. En ese mismo momento se levantaría la nueva porta principalis sinistra de la ciudad en el siglo I d.C.

La tercera fase comienza ya a comienzos del siglo III d.C. y se divide en las estancias que se ven hoy en día, de las que se desconoce su función, pero fueron edificadas reaprovechando muchos de los materiales antiguros.
En definitiva, el conjunto termal en su momento, debía ser un lugar impresionante. Os hablé hace poco de la estela dedicada a las Ninfas por Tito Pomponio Próculo Vitrasio Polio, dos veces cónsul romano, y su esposa, que podría haber estado en estas termas según dicen algunos autores.

En este lugar, por ejemplo, se encontraron restos de decoración pictórica procedentes de los muros.

Os dejo un enlace a un vídeo en el que se muestran algunas recreaciones virtuales (tiene mucho tiempo ya) de este edificio.
Bibliografía
- Morillo Cerdán, Ángel, Durán Cabello, R., & García Marcos, V. (2019). Las termas legionarias de León. Análisis e interpretación arqueológica de su ángulo sureste. Zephyrvs, 83, 107–138. https://doi.org/10.14201/zephyrus201983107138 ↩︎



